GE-72P-305
Ganco Energy
Looking for the best Ganco Energy panel?
We'll help you with:
Personalized quotes
Pre-vetted installers
Better product & prices

- Model
- GE-72P-305
- Series
- GE-72P-305
- Manufacturer
- Ganco Energy
- Rated Power
- 305 Wp
- Output Warranty
- 10 Years of 90% Output Power, 25 Years of 80% Output Power
- Materials Warranty
- 7 Years
The GE-72P-305 solar panels are compatible with various solar energy systems, including grid-tied and off-grid setups. Homeowners can also pair these panels with energy storage solutions, such as home batteries, to store excess energy for use during peak hours or in case of power outages.
Buy Ganco Energy GE-72P-305 Solar Panels
EnergyPal is a dealer for the best solar panels and leading energy companies, solar installers and manufacturers of solar and battery storage products. To see our latest deals, and learn about financing and $0 down lease options, please request a quote and we will call you immediately.
Solar Panel Performance
- Rated Power
- 305 Wp
- Efficiency
- 15.55 %
- Voltage at Maximum Power VMPP
- 36.9 V
- Current at Maximum Power IMPP
- 8.26 A
- Open Circuit Voltage VOC
- 45.04 V
- Short Circuit Current ISC
- 8.85 A
- Power Tolerance Positive
- + 1 %
- Maximum System Voltage
- 1000 V
- Maximum Fuse Rating
- 15 A
The GE-72P-305 solar panels have a rated output of 305 Wp and an impressive efficiency of 15.55 %, making them an excellent choice for homeowners looking to harness the power of the sun and reduce their energy costs.
With a maximum system voltage of 1000 V and a temperature coefficient of -0.45 %/°C, these solar panels can perform optimally even in challenging weather conditions.
Solar Panels Warranty Terms
- Output Warranty
- 10 Years of 90% Output Power, 25 Years of 80% Output Power
- Materials Warranty
- 7 Years
Solar Panels Thermal Ranges
The thermal performance of the GE-72P-305 solar panels from Ganco Energy ensures their reliability and efficiency across varying temperature conditions. These panels are designed to operate optimally within a wide operating temperature range of . Additionally, the temperature coefficients of the panels, such as the Temperature Coefficient of Pmax (-0.45 %/°C), Voc (-0.32 %/°C), and Isc (0.04 %/°C), play a vital role in determining the panel performance under changing environmental conditions. The carefully engineered thermal attributes of these solar panels contribute to their long-lasting performance and make them an ideal choice for regions with diverse climate patterns
- Temperature Coefficient of Pmax
- -0.45 %/°C
- Temperature Coefficient of Voc
- -0.32 %/°C
- Temperature Coefficient of Isc
- 0.04 %/°C
Solar Panel Attributes
- Weight
- 25 kg
- Cell Type
- Polycrystalline
- Cell Size
- 156.75×156.75 mm
- Cell Count
- 72
- Glass Type
- Tempered, Low Iron
- Glass Thickness
- 3.2 mm
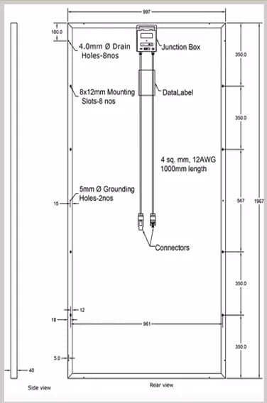
- Junction Box Protection Class
- IP 67
- Connector Type
- MC4
- Cable Crossection
- 4 mm2
- Cable Length
- 1000 mm
Get a free quote
and EnergyPal offers.
Call (800) 990-3725 or complete the questions and an EnergyPal Advisor will contact you with comparative quotes.